Przedszkole publiczne
Żółwin, pow. pruszkowski
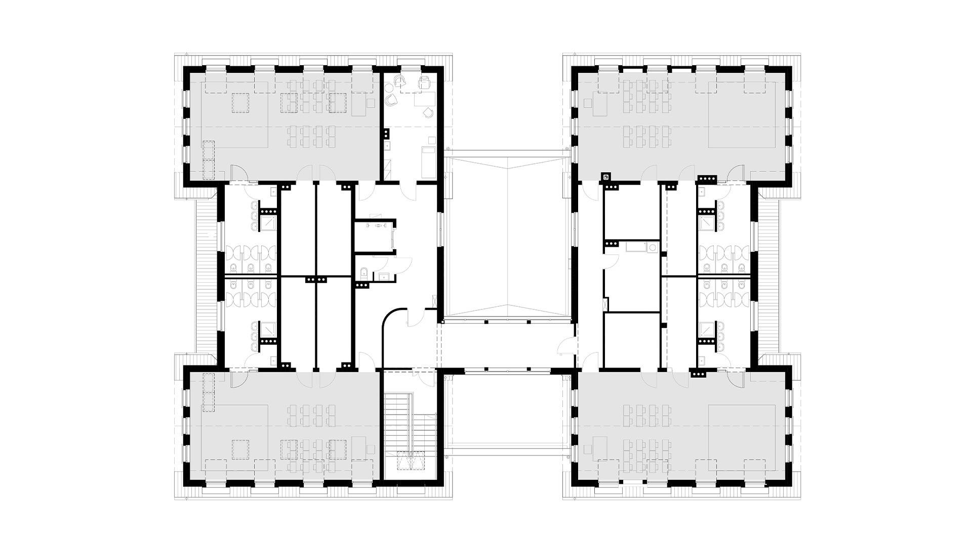
Celem projektowym była organizacja funkcji obiektu na dwóch kondygnacjach w taki sposób, aby wszystkie sale zajęć miał doświetlenie co najmniej z dwóch kierunków: wschodniego i południowego lub południowego i zachodniego.
Udało się to osiągnąć poprzez rozbicie budynku na cztery bryły z salami, połączone pomieszczeniami pomocniczymi, salą wielofunkcyjną na parterze, na piętrze łącznikiem.
Rozczłonkowanie budynku na mniejsze formy pozwoliło również zachować kameralny charakter zabudowy nawiązujący do architektury miejscowości.
KATEGORIA
Użyteczności publicznej
ROK
2012
AUTORZY
Michał Płoucha,
Magdalena Kozak
ZAKRES / STATUS
PB, PW / zrealizowano
DANE LICZBOWE
1 408 m2 powierzchnia całkowita,
6 oddziałów,
150 dzieci
INWESTOR
Gmina Brwinów




