Zespół żłobko-przedszkolny
Warszawa, ul. Meissnera
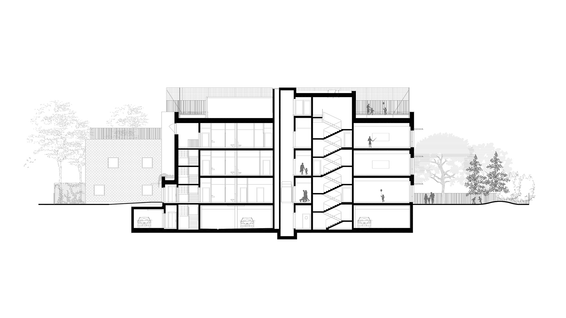
Teren inwestycji położony jest w centrum dużego osiedla mieszkaniowego na warszawskiej Pradze. Lokalizacja przedszkola pomiędzy trzynastokondygnacyjnymi blokami stanowiła niemałe wyzwanie.
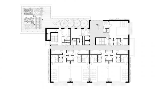
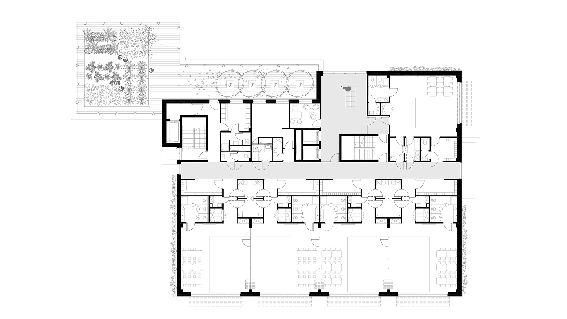
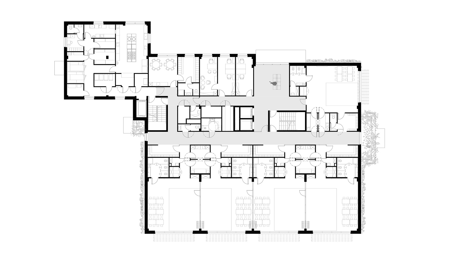
Proces projektowania poprzedzony był sporządzeniem studium wykonalności inwestycji dla różnych wariantów funkcjonalnych obiektu. Ostatecznie zdecydowano się na budowę czternastooddziałowego zespołu z garażem podziemnym i placem zabaw na dachu.
Forma obiektu determinowana jest przez bogaty program użytkowy zrealizowany na stosunkowo niewielkiej działce. W części trzykondygnacyjnej budynku znajdują się oddziały żłobka i przedszkola wraz z pomieszczeniami pomocniczymi i administracyjnymi. Nad nimi zaprojektowano zielony dach z placem zabaw. W części dwukondygnacyjnej mieszczą się pomieszczenia kuchenne, osobno dla żłobka i przedszkola. Na jej dachu przewidziano taras i ogródek warzywny.
W każdym możliwym do wykorzystania miejscu zaprojektowano zieleń. Znalazła się ona na terenie działki, na dachach oraz na elewacjach budynku w formie zieleni pnącej. Jako dopełnienie kolorystyczne do zieleni i drewnianych tarasów zdecydowano się budynek pozostawić białym. Kolor biały zastosowano konsekwentnie na każdym elemencie elewacji, od ścian tynkowanych, ścian z cegiełki elewacyjnej poprzez stolarkę okienną, balustrady, ogrodzenia, światłołamacze. Taki zabieg miał na celu nadanie hierarchii w porządku ważności zieleni i materiałom naturalnym.
KATEGORIA
Użyteczności publicznej
ROK
2021
AUTORZY
Michał Płoucha,
Justyna Surma-Pietruszka,
Sebastian Pałczyński
ZAKRES / STATUS
PB / w trakcie realizacji
DANE LICZBOWE
4 710 m2 powierzchnia całkowita,
14 oddziałów,
332 dzieci
INWESTOR
Gmina Praga-Południe







